|
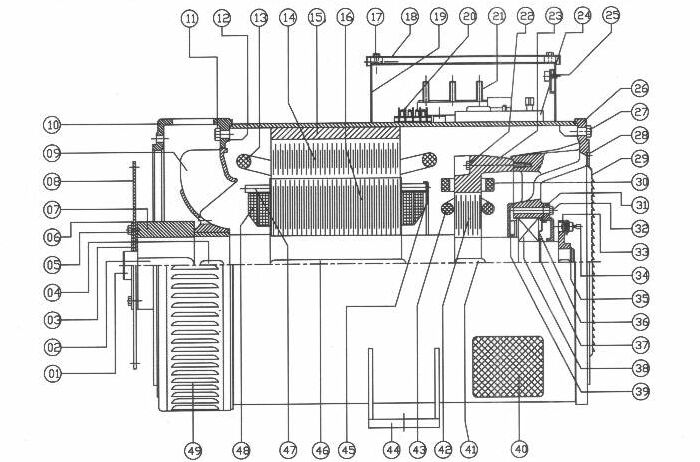
1 |
Mil |
26 |
Arka Kapak |
|
2 |
Kaplin Göbeği Kaması |
27 |
Arka Kapak Bağlantı Cıvatası |
|
3 |
Ayar Pulu |
28 |
Panjur Kapak Bağlantı Cıvatası |
|
4 |
Kaplin Diski |
29 |
Panjur Kapak |
|
5 |
Disk-Kaplin Bağlantı Cıvatası |
30 |
İkaz Statoru Sargısı |
|
6 |
Kaplin Baskı Diski |
31 |
Arka Dış Rulman Kapağı |
|
7 |
Fan Segmanı |
32 |
Rulman Kapağı Bağlama Cıvatası |
|
8 |
Kaplin Göbeği |
33 |
Diyot Diski |
|
9 |
Fan |
34 |
Diyotlar |
|
10 |
SAE Adaptör |
35 |
Diyot Diski Segmanı |
|
11 |
Adaptör Bağlama Cıvatası |
36 |
Yağ Regülatörü |
|
12 |
Gövde |
37 |
Arka Rulman Segmanı |
|
13 |
Stator Sargısı |
38 |
Arka Rulman |
|
14 |
Stator Sac Paketi |
39 |
Arka İç Rulman Kapağı |
|
15 |
Gövde Kaburgası |
40 |
Havalandırma Penceresi |
|
16 |
Rotor Sac Paketi |
41 |
İkaz Rotoru Kaması |
|
17 |
Klemens Kutusu Bağlama Cıvatası |
42 |
İkaz Rotoru Saç Paketi |
|
18 |
Klemens Kutusu Kapağı |
43 |
İkaz Rotoru Sargısı |
|
19 |
Klemens Kutusu |
44 |
Ayak |
|
20 |
Sıra Klemens |
45 |
Balans Ringi |
|
21 |
Klemens Tablası |
46 |
Rotor Kaması |
|
22 |
İkaz Statoru Bağlantı Cıvatası |
47 |
Rotor Sargı Destek Pimi |
|
23 |
İkaz Statoru |
48 |
Rotor Sargısı |
|
24 |
Elektronik Voltaj Regülatorü |
49 |
SAE Adaptör Panjuru |
|
25 |
Potansiyometre |
|
|